1363 Johnston Rd, White Rock
A Boutique view building opportunity in the heart of White Rock, BC, Canada
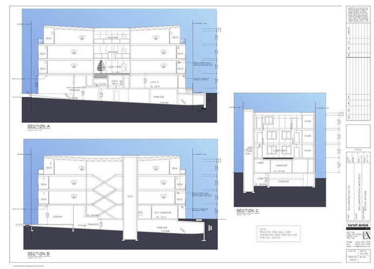
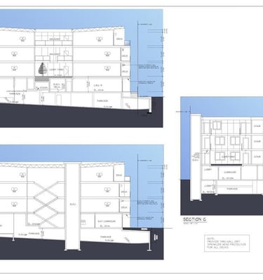
Amazing opportunity to buy and build a small scale mixed use boutique building project in the heart of downtown White Rock. This could be a retirement project for someone to live in a penthouse and rent out a fully stratified building which could easily be sold individually in the future. Or for someone transitioning from single family construction to multifamily. Or maybe a great CMHC rental project for experienced players. 3rd reading done for a 4 story mixed use boutique building - 1 commercial, 8 two bed condos and 2 three bed penthouses all with ocean views. Buildable area approx. 15,500 sq.ft. Zoned CR-2. BC Assessment as is for just the raw land is $2,752,300!








Property Overview
Explore our detailed property page featuring visual uploads, document libraries, and project highlights for informed decision-making.
Location
1363 Johnston Rd, White Rock
Status
3rd reading approved
BC Assessment
$2,752,300
Potential CoC return
$2,200,000
Acquisition price
30%
Welcome to Fundshive! By accessing this website and its property listings, you agree to these Terms & Conditions. If you do not agree, please do not use this site.
1. Use of the Website
Fundshive provides information about real estate investment opportunities.
You may view and use content for personal, non-commercial purposes only.
You cannot copy, sell, rent, or redistribute any material without explicit permission.
2. Cookie
We use cookies to improve your experience and provide personalized content.
Some cookies are required for the website to function. Optional cookies can be accepted or declined.
Third-party services (like videos) may use their own cookies.
3. Comments & User Submissions
Users may post comments or inquiries on listings.
Fundshive does not pre-approve or edit comments; these reflect the poster’s views, not Fundshive’s.
Fundshive reserves the right to remove any comments that are offensive, inappropriate, or violate these Terms.
By posting, you confirm:
You have permission to share the content.
Content does not violate intellectual property rights.
Content is not defamatory, offensive, or unlawful.
You grant Fundshive a non-exclusive license to use or edit your comments.
4. Hyperlinks to Fundshive
Certain organizations may link to Fundshive without approval, including:
Government agencies
Search engines
News organizations
Other requests to link must be approved, ensuring:
Links are not misleading
No implied endorsement
Context is appropriate
No Fundshive logos or artwork may be used without a trademark license.
5. Content Liability
Fundshive is not responsible for content posted on other websites linking to us.
Links should not appear on websites that are illegal, offensive, or infringe on third-party rights.
6. Right to Amend or Remove
Fundshive may update these Terms at any time.
Fundshive may request removal of links or content at any time.
7. Accuracy of Information
Fundshive does not guarantee that website content is complete, accurate, or up-to-date.
Listings, images, or project details may change.
8. Disclaimer
To the maximum extent permitted by law, Fundshive excludes all liability for loss or damage from using this website or property information.
This does not limit liability for:
Death or personal injury
Fraud or fraudulent misrepresentation
Other liabilities that cannot be excluded by law
Use of the website and property information is at your own risk.
